公司:淄博盖亿化工设备有限公司
手机:13011603077
座机:13011603077
邮箱:1552110064@qq.com
邮编:255000
地址:淄博市滨博高速淄博新区下路口北200米




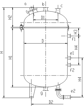
搪玻璃储罐(贮罐)用以存放酸、醇、气体等提炼的化学物质。根据结构分可分为:开式搪玻璃储罐(贮罐)、闭式搪玻璃储罐(贮罐)、卧式搪玻璃储罐(贮罐)等。它是石油、化工、粮油、食品、消防、交通、冶金、国防等行业必不可少的、重要的基础设施,我们的经济生活中总是离不开大大小小的储罐。标准开式搪玻璃储罐(贮罐)规格:50L、100L、200L、300L、400L、500L、800L、1000L、1250L、1500L、2000L、3000L、4000L、5000L等,也可根据用户需要进行非标开式搪玻璃贮罐定做。
型号
| 公称容积 L
| 实际容积 L
| 尺寸(mm) | 管口尺寸(mm) | 参考重量kg | ||||||||||||||
D | D1 | D2 | H1 | H2 | H3 | H4 | -H | a | b | c | d | e | f | g | h | ||||
ZK-50 | 50 | 61.3 | 400 | 240 | 280 | 520 | 250 | / | / | 1080 | 80 | 65 | 65 | / | / | / | 65 | 65 | 150 |
ZK-100 | 100 | 121 | 500 | 300 | 350 | 660 | 275 | 167 | 700 | 1245 | 100 | 65 | 65 | / | / | 2-65 | 65 | 65 | 210 |
ZK-200 | 200 | 240 | 600 | 360 | 420 | 900 | 310 | 193 | 900 | 1520 | 125 | 65 | 65 | / | / | 2-65 | 65 | 65 | 280 |
ZK-300 | 300 | 363 | 700 | 420 | 490 | 1000 | 351 | 178 | 1000 | 1661 | 125 | 80 | 65 | / | / | 2-65 | 80 | 65 | 380 |
ZK-400 | 400 | 469 | 800 | 480 | 560 | 1000 | 386 | 162 | 1000 | 1696 | 150 | 80 | 65 | / | / | 2-65 | 80 | 80 | 480 |
ZK-500 | 500 | 590 | 800 | 480 | 560 | 1240 | 386 | 202 | 1200 | 1936 | 150 | 80 | 65 | / | / | 2-65 | 80 | 80 | 530 |
ZK-800 | 800 | 884 | 1000 | 600 | 700 | 1210 | 436 | 194 | 1200 | 1956 | 150 | 80 | 80 | 80 | / | 2-65 | 80 | 80 | 765 |
ZK-1000 | 1000 | 1112 | 1000 | 600 | 700 | 1500 | 436 | 184 | 1500 | 2248 | 150 | 80 | 80 | 80 | / | 2-65 | 80 | 80 | 860 |
ZK-1250 | 1250 | 1391 | 1200 | 720 | 840 | 1330 | 486 | 188 | 1300 | 2128 | 200 | 80 | 80 | 80 | / | 2-65 | 80 | 80 | 1020 |
ZK-1500 | 1500 | 1674 | 1200 | 720 | 840 | 1580 | 486 | 238 | 1500 | 2378 | 200 | 100 | 80 | 80 | / | 2-65 | 100 | 80 | 1120 |
ZK-2000 | 2000 | 2219 | 1300 | 780 | 910 | 1780 | 511 | 224 | 1700 | 2603 | 400×300 | 100 | 80 | 80 | / | 2-65 | 100 | 80 | 1470 |
ZK-3000 | 3000 | 3336 | 1450 | 870 | 1015 | 2140 | 559 | 261 | 2000 | 3011 | 400×300 | 125 | 100 | 100 | / | 2-65 | 125 | 100 | 1970 |
ZK-4000 | 4000 | 4450 | 1600 | 960 | 1120 | 2340 | 606 | 210 | 1300 | 3258 | 400×300 | 125 | 100 | 100 | 2-65 | 2-65 | 125 | 100 | 2560 |
ZK-5000 | 5000 | 5560 | 1600 | 960 | 1120 | 2890 | 606 | 193 | 1600 | 3808 | 400×300 | 125 | 100 | 100 | 2-65 | 2-65 | 125 | 100 | 2910
|